アルトインテルノ

4.5万円

管理/共益費 4,500円

千葉県茂原市ゆたか

外房線「新茂原」駅徒歩13分

外房線「茂原」駅徒歩46分

外房線「本納」駅徒歩52分

価格
4.5万円 管理/共益費 4,500円
間取り/面積
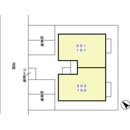
2LDK/53.76㎡
所在地
千葉県茂原市ゆたか
築年
2001年9月(築24年)
駐車
空有
交通

外房線新茂原」駅 徒歩13分

外房線茂原」駅 徒歩46分

外房線本納」駅 徒歩52分

アルトインテルノの基本情報

物件名
アルトインテルノ
価格
4.5万円
管理/共益費
4,500円
築年月
2001年9月(築24年)
総戸数
4戸
所在地
千葉県茂原市ゆたか
交通

外房線新茂原」駅 徒歩13分

外房線茂原」駅 徒歩46分

外房線本納」駅 徒歩52分

アルトインテルノの詳細情報

設備条件
  • 静かな環境
  • 耐震構造
  • インターネット対応
設備(その他)
    -
駐車場/月額
空有/3,300円 (税込)
用途地域
-
募集戸数 / 総戸数
- / 4戸
取引態様
一般媒介
備考
駅まで徒歩約13分に立地する物件です。初期費用をカードでお支払いいただけるので、カードで決済したい方にもおすすめです。トレジャーカンパニーは満足していただけるよう、スタッフ一同全力でサポート致します。当社は外房線新茂原近辺の賃貸物件を取り扱っています。room@treasure-c.co.jpにてお問い合わせ下さい。

アルトインテルノのコメント(おすすめポイント)

茂原市近辺での物件情報:大好評のあの物件「アルトインテルノ」。こちらの物件は茂原市立豊田小学校まで460m以内にあるのがポイントです。初期費用のカード決済ができます。トレジャーカンパニーがお勧めする、外房線新茂原周辺の物件の見学をご希望の方は0475-77-8247やroom@treasure-c.co.jpからお願いします。

アルトインテルノで募集中の物件

  1. 102

    16.26坪 (53.76㎡)

    4.5万円(2767.53円/坪)

周辺施設

  • セブンイレブン茂原長尾店の画像

    コンビニエンスストア

    セブンイレブン茂原長尾店

    449m(6分)

  • 茂原市立豊田小学校の画像

    小学校

    茂原市立豊田小学校

    460m(6分)

  • スシロー 茂原店の画像

    寿司

    スシロー 茂原店

    492m(7分)

  • 和食レストランとんでん 茂原店の画像

    和風料理

    和食レストランとんでん 茂原店

    588m(8分)

  • 新茂原駅の画像

    新茂原駅

    613m(8分)

  • ジョナサン 新茂原店の画像

    ファミリーレストラン

    ジョナサン 新茂原店

    626m(8分)

  • 新茂原駅前郵便局の画像

    郵便局

    新茂原駅前郵便局

    672m(9分)

  • 茂原市立新茂原幼稚園の画像

    幼稚園

    茂原市立新茂原幼稚園

    868m(11分)

  • ベイシア茂原店の画像

    スーパー

    ベイシア茂原店

    1206m(16分)

  • 高師鶴舞公園の画像

    公園

    高師鶴舞公園

    1533m(20分)

  • 丸亀製麺茂原店の画像

    そば・うどん

    丸亀製麺茂原店

    1573m(20分)

  • (株)カスミ 茂原店の画像

    スーパー

    (株)カスミ 茂原店

    1750m(22分)

  • 100円ショップセリア茂原店の画像

    生活雑貨店

    100円ショップセリア茂原店

    1842m(24分)

  • 医療法人社団三愛会君塚病院の画像

    総合病院

    医療法人社団三愛会君塚病院

    1940m(25分)

  • アスモの画像

    ショッピングセンター

    アスモ

    1943m(25分)

  • 茂原市役所の画像

    市役所・区役所

    茂原市役所

    2622m(33分)

  • 千葉銀行茂原東支店の画像

    銀行

    千葉銀行茂原東支店

    2858m(36分)

  • ドン・キホーテ 茂原店の画像

    インテリア

    ドン・キホーテ 茂原店

    3619m(46分)

近隣の物件

  1. 茂原市緑町

    3DK (66.07㎡)

    5.3万円

  2. 茂原市東郷

    2DK (39.00㎡)

    4万円

  3. 茂原市本納

    1K (17.39㎡)

    3万円

  4. 茂原市早野

    2DK (51.67㎡)

    5.2万円

よく見られている物件

  1. 大網白里市駒込

    2LDK (45.50㎡)

    4.3万円

  2. 東金市中野

    2DK (34.78㎡)

    3.9万円

  3. 大網白里市駒込

    2K (39.25㎡)

    4.5万円

  4. 大網白里市南横川

    3DK (91.08㎡)

    4.9万円

アルトインテルノ

お気軽にお問い合わせください

無料お問い合わせ

株式会社トレジャーカンパニー

0475-77-8247

10:00~17:00

(休:毎週水曜日、GW、夏季休暇、年末年始)